- Ron Tate, Broker,CRB,CRS,GRI,REALTOR ®,SFR
- By Referral Realty
- Mobile: 210.861.5730
- Office: 210.479.3948
- Fax: 210.479.3949
- rontate@taterealtypro.com
Property Photos

- MLS#: 1908170 ( Single Residential )
- Street Address: 13137 Brook Arbor
- Viewed: 22
- Price: $322,500
- Price sqft: $196
- Waterfront: No
- Year Built: 2009
- Bldg sqft: 1646
- Bedrooms: 3
- Total Baths: 3
- Full Baths: 2
- 1/2 Baths: 1
- Garage / Parking Spaces: 1
- Days On Market: 53
- Additional Information
- County: BEXAR
- City: San Antonio
- Zipcode: 78232
- Subdivision: Heimer Gardens
- District: North East I.S.D.
- Elementary School: Coker
- Middle School: Bradley
- High School: Churchill
- Provided by: Keller Williams City-View
- Contact: Tyler Moore
- (210) 696-9996

- DMCA Notice
-
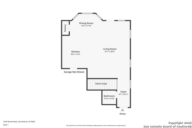
DescriptionWelcome to Heimer Gardens! Nestled at the end of a quiet cul de sac, this charming two story home offers 3 bedrooms, 2.5 bathrooms, and thoughtfully designed living spaces. Inside, you'll find beautiful finishes including a beautifully updated kitchen with white quartz countertops, wood laminate flooring, ceramic tile, and stainless steel appliances. The main level features an open layout complemented by lots of natural light, while upstairs boasts a spacious loft, a generous primary suite, and two nicely sized secondary bedrooms. Outdoors, enjoy a large deck and privacy fenced backyard perfect for relaxing or entertaining. This home also features solar panels to assist in utility cost savings and less power dependence on the grid. Situated at the end of a one street community, residents benefit from minimal through traffic and privacy. Conveniently located near Hwy 281, the San Antonio International Airport, downtown, and various dining and shopping options, this home provides both comfort and accessibility. Schedule your showing today!
Features
Possible Terms
- Conventional
- FHA
- VA
- Cash
Air Conditioning
- One Central
Apprx Age
- 16
Builder Name
- McMillian
Construction
- Pre-Owned
Contract
- Exclusive Right To Sell
Days On Market
- 23
Dom
- 23
Elementary School
- Coker
Exterior Features
- 4 Sides Masonry
- Stone/Rock
- Cement Fiber
Fireplace
- Not Applicable
Floor
- Carpeting
- Ceramic Tile
- Laminate
Foundation
- Slab
Garage Parking
- One Car Garage
- Attached
Green Features
- Solar Panels
Heating
- Central
Heating Fuel
- Electric
High School
- Churchill
Home Owners Association Fee
- 533.5
Home Owners Association Frequency
- Annually
Home Owners Association Mandatory
- Mandatory
Home Owners Association Name
- HEIMER GARDENS HOA
Inclusions
- Ceiling Fans
- Chandelier
- Washer Connection
- Dryer Connection
- Stove/Range
- Solid Counter Tops
Instdir
- From 281 N
- Exit Bitters
- turn right on Bitters
- turn left on Heimer Rd
- turn right onto Brook Arbor
Interior Features
- One Living Area
- Eat-In Kitchen
- Island Kitchen
- Breakfast Bar
- Utility Room Inside
- All Bedrooms Upstairs
- Open Floor Plan
- Cable TV Available
- High Speed Internet
- Laundry Main Level
- Walk in Closets
Kitchen Length
- 14
Legal Desc Lot
- 24
Legal Description
- NCB 17238 (HEIMER GARDENS SUBD)
- BLOCK 2 LOT 24
Lot Description
- Corner
- Cul-de-Sac/Dead End
Lot Improvements
- Street Paved
- Curbs
- Sidewalks
Middle School
- Bradley
Multiple HOA
- No
Neighborhood Amenities
- None
Occupancy
- Owner
Owner Lrealreb
- No
Ph To Show
- 210-222-2227
Possession
- Closing/Funding
Property Type
- Single Residential
Roof
- Composition
School District
- North East I.S.D.
Source Sqft
- Appsl Dist
Style
- Two Story
- Traditional
Total Tax
- 7108.05
Utility Supplier Elec
- CPS
Utility Supplier Sewer
- SAWS
Utility Supplier Water
- SAWS
Views
- 22
Water/Sewer
- Water System
- Sewer System
Window Coverings
- Some Remain
Year Built
- 2009
Property Location and Similar Properties