- Ron Tate, Broker,CRB,CRS,GRI,REALTOR ®,SFR
- By Referral Realty
- Mobile: 210.861.5730
- Office: 210.479.3948
- Fax: 210.479.3949
- rontate@taterealtypro.com
Property Photos

- MLS#: 1919309 ( Single Residential )
- Street Address: 15318 Twin Canyon
- Viewed: 64
- Price: $533,990
- Price sqft: $190
- Waterfront: No
- Year Built: 2025
- Bldg sqft: 2812
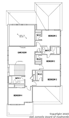
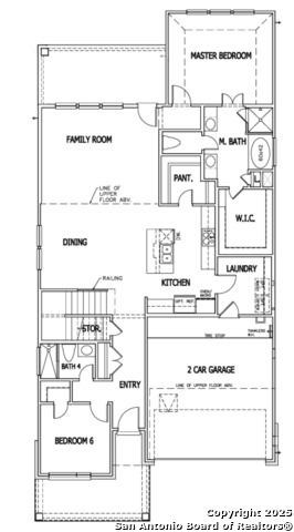
- Bedrooms: 6
- Total Baths: 4
- Full Baths: 4
- Garage / Parking Spaces: 2
- Days On Market: 55
- Additional Information
- County: BEXAR
- City: San Antonio
- Zipcode: 78247
- Subdivision: Park Hill Commons
- District: North East I.S.D.
- Elementary School: Redland Oaks
- Middle School: Driscoll
- High School: Macarthur
- Provided by: Details Communities, Ltd.
- Contact: Marcus Moreno
- (210) 422-3004

- DMCA Notice
-
Description** READY NOW ** Welcome to 15318 Twin Canyon, a stunning home nestled in the highly sought after NEISD school district of San Antonio, TX. This spacious residence boasts 6 bedrooms, with the luxurious master and a full guest bedroom located on the first floor for added convenience and privacy. The upper level features four additional bedrooms and a versatile game room perfect for family fun and entertaining guests. Inside, you'll find elegant grey cabinets in the kitchen paired with sleek quartz countertops throughout, creating a modern and cohesive look. The bathrooms feature warm Storm Cloud brown cabinets, complemented by stylish finishes. The entire main area and master suite are beautifully tiled with white 12x24 Vena tile, adding a touch of sophistication and easy maintenance. Located just minutes from H E B Grocery, shopping centers, dining, and other amenities, this home offers the perfect blend of comfort, style, and convenience. Schedule your private tour today and see all the possibilities this remarkable home has to offer!
Features
Possible Terms
- Conventional
- FHA
- VA
- TX Vet
- Cash
Accessibility
- First Floor Bath
- Full Bath/Bed on 1st Flr
- First Floor Bedroom
Air Conditioning
- Two Central
Builder Name
- Scott Felder Homes
Construction
- New
Contract
- Exclusive Right To Sell
Days On Market
- 53
Dom
- 53
Elementary School
- Redland Oaks
Energy Efficiency
- Smart Electric Meter
- 16+ SEER AC
- Programmable Thermostat
- Double Pane Windows
- Energy Star Appliances
- Radiant Barrier
- Low E Windows
- High Efficiency Water Heater
- Ceiling Fans
Exterior Features
- Stone/Rock
- Stucco
- Cement Fiber
Fireplace
- Not Applicable
Floor
- Carpeting
- Ceramic Tile
- Vinyl
Foundation
- Slab
Garage Parking
- Two Car Garage
Green Certifications
- HERS Rated
Green Features
- Drought Tolerant Plants
- Low Flow Commode
- Low Flow Fixture
- Mechanical Fresh Air
- Enhanced Air Filtration
Heating
- Central
Heating Fuel
- Natural Gas
High School
- Macarthur
Home Owners Association Fee
- 825
Home Owners Association Frequency
- Annually
Home Owners Association Mandatory
- Mandatory
Home Owners Association Name
- GOODWIN & COMPANY
Home Faces
- North
- West
Inclusions
- Ceiling Fans
- Washer Connection
- Dryer Connection
- Self-Cleaning Oven
- Microwave Oven
- Stove/Range
- Gas Cooking
- Disposal
- Dishwasher
- Ice Maker Connection
- Vent Fan
- Smoke Alarm
- Pre-Wired for Security
- Gas Water Heater
- Garage Door Opener
- In Wall Pest Control
- Plumb for Water Softener
- Solid Counter Tops
- Carbon Monoxide Detector
- City Garbage service
Instdir
- Take HWY 1604 North Exit Bulverde Rd. and continue down Bulverde Rd for 1.7 miles. Take a left on Jung Rd. Park Hill Commons will be on your right hand side
- continue to take a right on old Jung Rd. to the Entrance. Model home on 15326 Golden Prairie
Interior Features
- Two Living Area
- Liv/Din Combo
- Separate Dining Room
- Island Kitchen
- Breakfast Bar
- Walk-In Pantry
- Game Room
- Utility Room Inside
- High Ceilings
- Open Floor Plan
- Pull Down Storage
- Cable TV Available
- High Speed Internet
- All Bedrooms Downstairs
- Laundry Main Level
- Telephone
- Walk in Closets
- Attic - Pull Down Stairs
- Attic - Radiant Barrier Decking
Kitchen Length
- 16
Legal Description
- Take Bulverde exit off Loop 1604 and continue down Bulverde
Lot Description
- On Greenbelt
Lot Dimensions
- 45 x 128 x 49 x 108
Lot Improvements
- Street Paved
- Curbs
- Sidewalks
- City Street
Middle School
- Driscoll
Miscellaneous
- Builder 10-Year Warranty
Multiple HOA
- No
Neighborhood Amenities
- None
Occupancy
- Vacant
Owner Lrealreb
- No
Ph To Show
- 210-807-8244
Possession
- Closing/Funding
Property Type
- Single Residential
Roof
- Composition
School District
- North East I.S.D.
Source Sqft
- Bldr Plans
Style
- Two Story
- Contemporary
- Traditional
- Texas Hill Country
Total Tax
- 2.28
Utility Supplier Elec
- CPS
Utility Supplier Gas
- CPS
Utility Supplier Grbge
- City
Utility Supplier Sewer
- SAWS
Utility Supplier Water
- SAWS
Views
- 64
Virtual Tour Url
- https://www.scottfelderhomes.com/homes/san-antonio-area/san-antonio/park-hill-commons/3934-gentle-brook
Water/Sewer
- City
Window Coverings
- None Remain
Year Built
- 2025
Property Location and Similar Properties